437 Brian DriveKeller, TX 76248




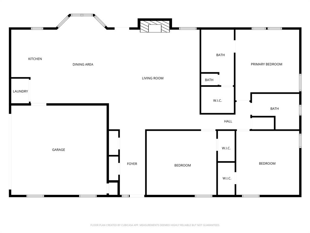
Nestled in the heart of Keller on a spacious 0.33-acre corner lot, this beautifully reimagined home is a rare find. Surrounded by gorgeous mature trees and located in a highly desirable area, this property offers both timeless charm and modern upgrades throughout. Meticulously remodeled down to the studs, this home features updated plumbing and a thoughtfully redesigned floorplan to create a seamless, open-concept living space. From the moment you arrive, you’ll be welcomed by a charming front porch and a striking black front door that sets the tone for what’s inside. Step into the living room with soaring ceilings and a cozy fireplace at its center—an ideal spot to gather and unwind. The open layout flows into an oversized dining area perfect for entertaining, and a brand-new kitchen complete with all-new cabinetry, stainless steel appliances, quartz countertops, modern lighting, and designer finishes. Each bedroom is generously sized and includes a walk-in closet, offering plenty of space for family and guests. The secondary bathroom has been fully updated in neutral tones to complement any style. The private primary suite is tucked away at the back of the home and continues the beautiful wood-look flooring found throughout the main living areas. Enjoy a serene retreat with large windows, a luxurious en-suite bathroom featuring a double-sink vanity, large walk-in shower, and a massive walk-in closet. Outside, the large lot provides plenty of room for outdoor enjoyment under the shade of mature trees. This home combines high-end updates with a warm, welcoming atmosphere—all in one of Keller’s most coveted locations. Don’t miss the opportunity to own this truly special home. Schedule your private showing today!
| 3 hours ago | Listing updated with changes from the MLS® | |
| 9 hours ago | Listing first seen on site |
© 2020 North Texas Real Estate Information Systems. All rights reserved. Information is deemed reliable but is not guaranteed accurate by the MLS or NTREIS. The information being provided is for the consumer's personal, non-commercial use, and may not be reproduced, redistributed, or used for any purpose other than to identify prospective properties consumers may be interested in purchasing.
Last checked: 2025-12-24 08:42 PM CST

Did you know? You can invite friends and family to your search. They can join your search, rate and discuss listings with you.