201 Lone Pine CourtFort Worth, TX 76108




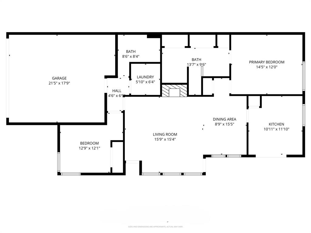
Situated on a quiet cul-de-sac in the established Chapel Creek neighborhood, this well-maintained single-story home delivers comfort, privacy, and convenience. Offering 2 bedrooms, 2 full baths, 1,145 sq ft, and a 2-car garage, this property is ideal for first-time buyers, downsizers, or anyone seeking an easy-living layout in a prime Fort Worth location. Step inside to a bright living space featuring vaulted ceilings, engineered wood flooring, and a brick wood-burning fireplace that anchors the room. The kitchen is updated with granite countertops, built-in cabinetry, tile backsplash, and a pantry, plus direct access to the backyard through sliding doors—perfect for entertaining. The dining area provides great natural light and an open flow to the main living space. The spacious primary suite includes dual sinks, a custom closet system, and an oversized bath. A second well-sized bedroom and a full guest bath offer comfort for family or visitors. Laundry is conveniently located off the main hall. Outside, the large backyard offers a newer privacy fence, concrete patio, and plenty of room for gardening, pets, or outdoor living. The front-facing garage and long driveway allow additional parking. Located within White Settlement ISD, minutes from Lockheed Martin, NAS JRB, Downtown Fort Worth, and just around the corner from retail, dining, and recreation. Enjoy quick access to I-30, Loop 820, Chapel Creek Park, Lake Worth, Benbrook Lake, and multiple community amenities. A solid, move-in-ready home in a desirable area—don’t miss this one!
| 8 hours ago | Listing updated with changes from the MLS® | |
| 13 hours ago | Listing first seen on site |
© 2020 North Texas Real Estate Information Systems. All rights reserved. Information is deemed reliable but is not guaranteed accurate by the MLS or NTREIS. The information being provided is for the consumer's personal, non-commercial use, and may not be reproduced, redistributed, or used for any purpose other than to identify prospective properties consumers may be interested in purchasing.
Last checked: 2025-11-22 04:48 AM CST

Did you know? You can invite friends and family to your search. They can join your search, rate and discuss listings with you.