$945,000
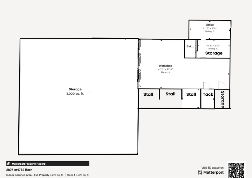
A New Breed of Country Living in Sulphur Springs, TXDiscover a true equestrian paradise at 2867 County Road 4762 in Sulphur Springs, TX. This stunning 37+ acre property is designed for those who love horses and the tranquility of country living. The custom-built home pairs modern elegance with the rustic… Read Morecharm of wide-open farm landscapes and picturesque views.Step inside to find a welcoming home with warm finishes and modern upgrades, including a kitchen with granite countertops, ample storage, and a walk-in pantry. The open-concept living space and formal dining room are perfect for gatherings, while the cozy breakfast nook and back porch offer peaceful mornings overlooking your land.This property stands out as a dedicated horse property, featuring a 5,000+ sq ft barn with 3 horse stalls, a full bath, AC, and office space. Whether you're an experienced equestrian or a hobbyist, the barn’s space, along with upgraded pastures, cattle handling pens, and an RV hookup, make this the perfect spot for both horses and livestock. The stocked pond and open pastures offer a serene retreat, while practical improvements like the Generac home generator, a new AC system, and a Tesla charging station provide modern convenience.Centrally located between five beautiful lakes—Fork, Cypress, Quitman, Cooper, and Bob Sandlin—this property is ideal for outdoor enthusiasts. Plus, it’s just 1.5 hours from Dallas/Fort Worth, offering easy access to city amenities while preserving the peaceful country lifestyle.For buyers looking to combine luxury with a love for horses and rural living, 2867 County Road 4762 offers an unmatched opportunity to create your ideal equestrian estate.Read Less
Video Tour
Virtual Tour
Video Tour
Virtual Tour
Features
Bedrooms
3
Bathrooms
2
Square Ft.
2,064
Mortgage Calculator
Monthly Payment
$0
Perfect home finder
'VIP' Listing Search
Whenever a listing hits the market that matches your criteria you will be immediately notified.
Renee Jennings
Realtor

Please Select Date
Please Select Type
Similar Listings
Confirm your time
Fill in your details and we will contact you to confirm a time.
Contact Form
Welcome to our open house!
We encourage you to take a few seconds to fill out your information so we can send you exclusive updates for this listing!
































